- Описание
- Основное
- Особенности
- Спецификации
- Виды
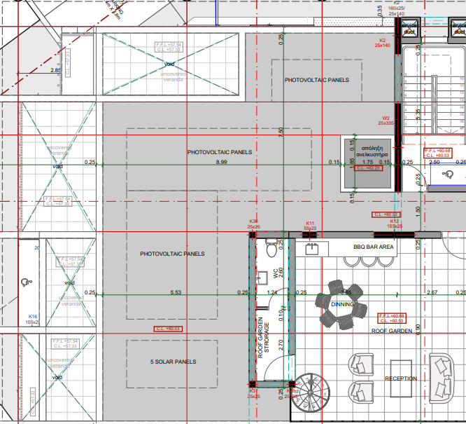
- Планы
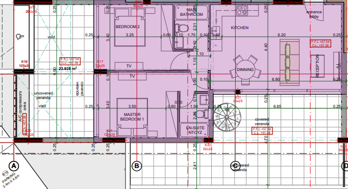
Современная двухкомнатная квартира в Лимассоле, район Като Полемидия, Айос Спиридонас, рядом со всей необходимой инфраструктурой.
Квартира включает в себя кухню открытой планировки, соединенную с гостиной и столовой, две спальни (одна из которых — главная спальня с душевой кабиной) и ванную комнату. Из гостиной есть выход на просторную веранду, а также на сад на крыше.
Внутренняя площадь составляет 78 кв.м, а крытая веранда — 115 кв.м.
Сдача: I квартал 2028 года















