- Описание
- Основное
- Особенности
- Спецификации
- Виды
- Планы
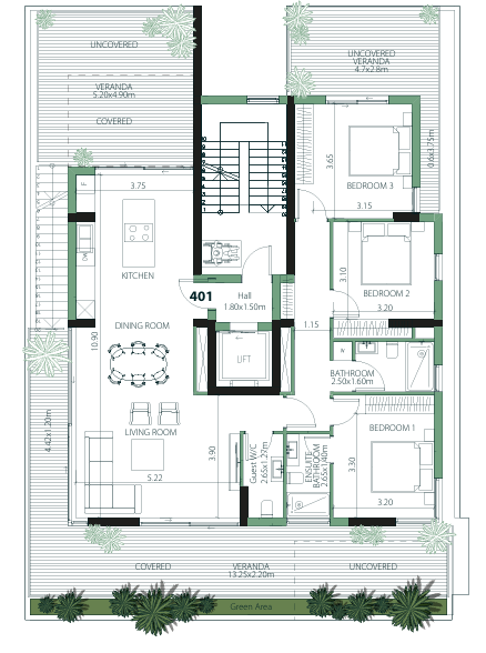
Прекрасная трехкомнатная квартира, расположенная в центре Лимассола, в районе Агиос Нектариос, недалеко от всех удобств.
Квартира состоит из кухни открытой планировки, соединенной с гостиной и столовой зоной, гостевого туалета, трех спален (одна из которых с собственной ванной комнатой с душем) и основной ванной комнаты.
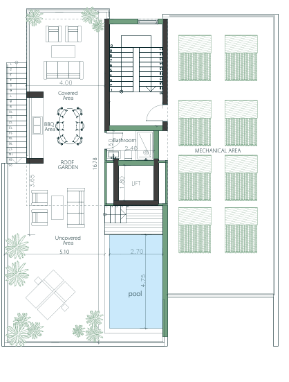
Из гостиной есть выход на уютную веранду, а наверху находится сад на крыше с зоной барбекю, гостевой туалет с душем и частный бассейн.
Площадь крытой внутренней части квартиры составляет 125 кв.м, крытой веранды — 37 кв.м, а сада на крыше — 106 кв.м.
Срок сдачи: 2027 год.













